5 pièces et plus - Page 9
À 15min à pied en montée des Thermes, studio de 32m2 situé au 3ème étage sans ascenseur en faux plat avec quelques marches d'escalier. Appartement atypique au calme dans un château classé monument historique.
Allevard Proche Centre
Découvrez l'Appartement La Gleyzinière N°3 à Allevard pour un séjour confortable dans un cadre chaleureux. Profitez de tous les services nécessaires pour un séjour agréable.
-
Etage :
- 2e étage
Bel appartement, bien équipé avec exposition sud-ouest et vue fontaine et pistes.
Séjournez dans un gîte cosy au pied des cascades de Chartreuse et face à la majestueuse chaîne de Belledonne. À deux pas de la station de Prapoutel-les-7-Laux et bien sûr, vos compagnons à quatre pattes sont les bienvenus.
Ce chalet vous offre une vue sur les contreforts de la Chartreuse.
Il est situé au calme dans un espace verdoyant. Sa pièce de vie lumineuse avec sa décoration montagnarde et son aménagement tout confort est idéal pour passer un agréable séjour.
Appartement joliment rénové dans une belle résidence face au parc d'Uriage.
Très Bel appartement ,bien équipé avec exposition OUEST vue fontaine et placette !
Ce vaste appartement se situe dans une maison de ville du centre, dans une rue piétonne. Son emplacement en fait un lieu très pratique pour se rendre aux thermes et/ou profiter des commodités et animations d'Allevard-les-bains.
Découvrez l'hébergement 2 étoiles de Mme Anselmino Chantal à Allevard, idéalement situé à 10 mn à pieds de l'établissement thermal, dans un meublé très confort 2 étoiles.
Bienvenue au Gîte de Calistane – L’Envolée
Une maison lumineuse et spacieuse de 80 m², nichée au pied du massif de la Chartreuse et face à la majestueuse chaîne de Belledonne .
Ambiance chic & zen, plein sud
Grand appartement T2 dans une résidence sécurisée avec parking, en plein centre d’Uriage. Il est situé face au magnifique parc. Tous les commerces sont accessibles à pied. Les thermes se trouvent à seulement 350 mètres.
À 7,8km des Thermes, appartement lieu paisible en campagne. Excellente luminosité avec vue jardins et montagnes, exposition sud. Départ pour de belles promenades. Fibre orange. Entrée indépendante, jardins et cour accessibles. Parking lotissement.
Au coeur du Parc Naturel de Chartreuse, sur le plateau des Petites Roches, aménagé dans une jolie maison de village mitoyenne, ce gîte dispose au r.d.c. d'un séjour-cuisine, m-ondes. Salon avec poêle à bois, s.d.b., wc, cave. A l'étage : Ch.1 (2 ...
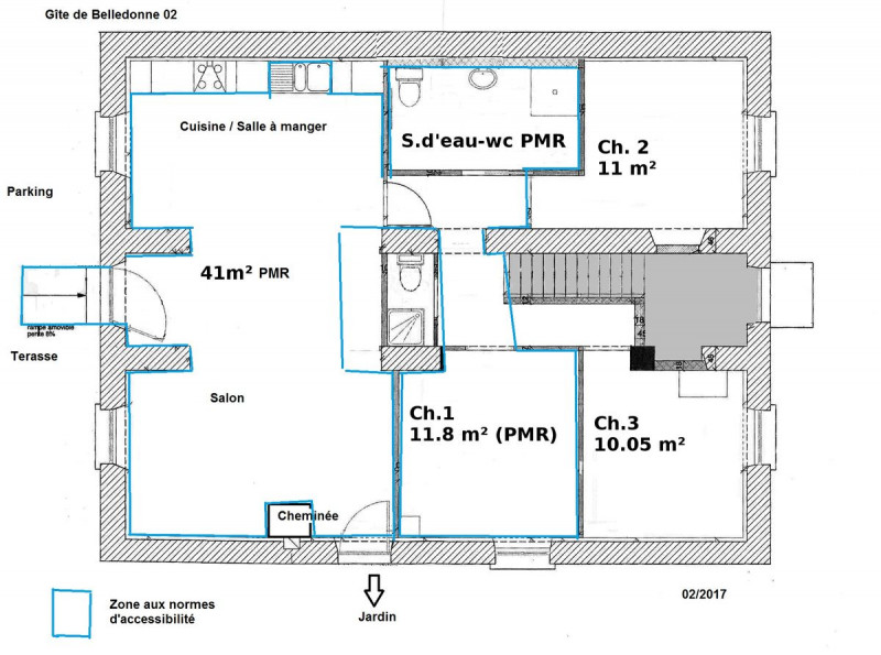
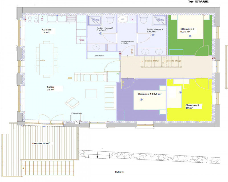
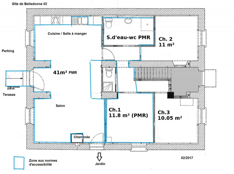
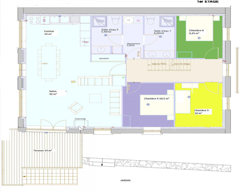
Grand gîte sur 2 niveaux 5 chambres 3 salle de bain dans un hameau de moyenne montagne, à 15' de la station été/hiver des 7 Laux, 30' de Grenoble, 1h 30' de Genève








































































































































































































































































































































































































































































