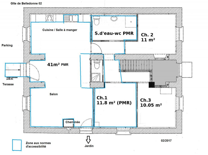
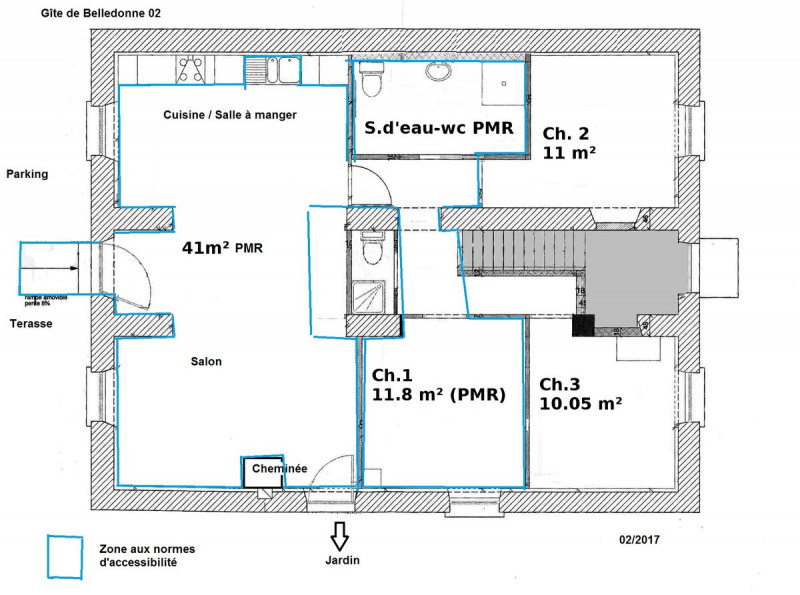
5 pièces et plus - Page 18
L'appartement "l'Arpette" est composé de 3 chambres, d'un salon/salle à manger avec cuisine équipé et canapé lit, d'une salle de bain ainsi que d'un WC, cet appartement pourra accueillir confortablement 8 à 10 personnes.
Appartement avec wifi et ...
Gîte de pleine nature à 960m d'altitude, Orionde est l'endroit parfait pour se retrouver en famille ou entre amis !
À 4 km des Thermes, meublé de 40m2 avec beaucoup de charme, complètement rénové.
Ameublement et équipements de qualité. Classé 3 étoiles.
Charmant appartement 2 pièces de 35 m², idéal pour 2 personnes, situé au 2ᵉ étage avec ascenseur d’une résidence agréable.
À seulement 900 mètres des Thermes d’Uriage, il offre un cadre pratique et reposant.
Gîte aménagé dans un quartier résidentiel calme du village de Crolles, à 20min de Grenoble et 30min des stations de ski. Vous disposerez d'un vaste séjour-cuisine avec salon, tv écran plat. Ch.1 (1 lit 2 pers.), Ch.2 (2 lits 1 pers 80x200), wc, ...
Bienvenue au Gîte de Calistane – L’Envolée
Une maison lumineuse et spacieuse de 80 m², nichée au pied du massif de la Chartreuse et face à la majestueuse chaîne de Belledonne .
Ambiance chic & zen, plein sud
Sur le plateau des Petites Roches, au sein du Parc naturel de Chartreuse, Maryse et Bruno vous accueillent avec convivialité dans un joli chalet indépendant de 75m² avec vue panoramique, et vous invitent à découvrir leur région.
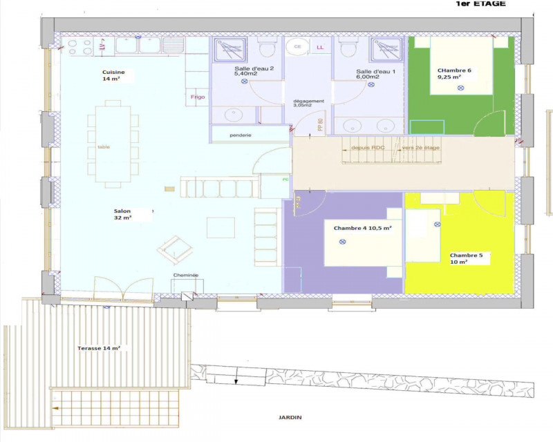
Grand gîte sur 2 niveaux 5 chambres 3 salle de bain dans un hameau de moyenne montagne, à 15' de la station été/hiver des 7 Laux, 30' de Grenoble, 1h 30' de Genève
Charmant studio à Allevard à 50m des thermes d'Allevard, parfait pour un séjour pratique et confortable. Il comprend un lit cosy, une cuisine entièrement équipée, une table à manger et une salle de bain moderne.
À 1,2 Km des Thermes, ancienne dépendance du château d'Uriage bordant un sentier qui mène aux Thermes, ce gite est apprécié pour son cadre et sa convivialité. Climatisation réversible.
Ce chalet vous offre une vue sur les contreforts de la Chartreuse.
Il est situé au calme dans un espace verdoyant. Sa pièce de vie lumineuse avec sa décoration montagnarde et son aménagement tout confort est idéal pour passer un agréable séjour.
Découvrez l'hébergement 2 étoiles de Mme Anselmino Chantal à Allevard, idéalement situé à 10 mn à pieds de l'établissement thermal, dans un meublé très confort 2 étoiles.
Chalet réalisé en éco-matériaux, situé à prox. de l'exploitation agricole des prop. Ambiance et décoration montagnarde. Au RDC : cuisine ouverte sur espace salon avec poêle cheminée, Ch.1 (1 lit 2 pers.), s.d'eau, wc. Au 1er : salon en mezz., ...
Ds 1 cadre forêt et montagne, maison de caractère aménagée au RDC : espace cuisine ouvert sur s.a.m avec accès terrasse et terrain, salon cheminée, Ch.1 (lit double), s.d'eau, wc. Au 1e : Ch.2 (2 lits superp. 1 pers., lit 1 pers.), Ch.3 (lit double ...
Venez profiter d’un agréable séjour dans notre gîte et oublier le stress de la ville, dans un cadre rare et exceptionnel au cœur du massif de la Chartreuse à 1000 mètres d’altitude en pleine nature.
Appartement dans Chalet à Prapoutel qui possède 3 chambre(s), capacité pour 8 personnes.
Logement unique de 69 m² confortable, situé en au pied des pistes de ski, avec vue sur la montagne et vue sur les pistes !
Séjournez dans un gîte cosy au pied des cascades de Chartreuse et face à la majestueuse chaîne de Belledonne. À deux pas de la station de Prapoutel-les-7-Laux et bien sûr, vos compagnons à quatre pattes sont les bienvenus.
Situé dans un environnement calme et verdoyant, à seulement 800 mètres des Thermes d'Uriage, ce studio de 22 m² est en rez-de-jardin dans une maison. Vous pourrez profiter du jardin de la maison pour vous détendre, ou organiser un barbecue.
Le gîte « La passerelle » pour deux à quatre personnes est un bel appartement sur deux niveaux.
Mireille et Eric vous accueillent dans la bonne humeur.
Entièrement rénové avec des matériaux écologiques, il propose des prestations de qualité.




































































































































































































































































































































































































































































































































































































































































