5 pièces et plus - Page 11
À 600 mètres à pieds des Thermes, cette agréable maison, exposée Est, est située au cœur d'Uriage dans une rue très calme, en restant à proximité des commerces et du parc thermal.
Niché sur les hauteurs de Saint-Martin-d’Uriage dans un environnement très calme à 5 minutes d’Uriage, ce gîte rénové avec soin vous invite à vivre une expérience unique, mêlant le charme de l'ancien avec son style campagne et le confort du ...
86.32 m² Allevard Centre
Appartement spacieux de 62 m2 avec une chambre à deux pas des Thermes
-
Etage :
- Rez-de-chaussée
Gîte rénové avec gout, aménagé au 1e étage d'1 maison de villégiature thermale des années 1900 avec parc arboré commun, au coeur du village. Sur place : loisirs (piscine municipale), commerces, santé. Vue imprenable sur les collines et massifs ...
À 3km des Thermes, villa paisible pour se ressourcer, en rez-de-jardin dans un cadre verdoyant, proche de toutes commodités.
Capacité 4 personnes (1 lit 140cm + 2 lits 80cm), possibilité de couchage pour 6 personnes avec canapé convertible dans le ...
Agréable studio sur la station des 7 Laux, très lumineux avec balcon situé plein sud pour 4 personnes. Accessible en ski directement jusqu'au balcon. 1 pièce cabine avec 2 lits superposés et un salon avec un canapé convertible.
Entrée Parc de Chartreuse, face au massif de Belledonne, dans un hameau de village calme offrant toutes commodités.
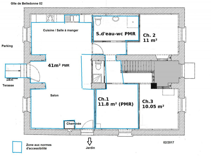
Maison indiv. de caractère située au calme, au coeur de Belledonne. Cadre propice à la détente et aux activ. de montagne. Au r.d.c.: (accès par qq marches), séjour (cheminée) cuisine, micro ondes, s.d'eau, wc, buanderie. Au 1er : Ch. bleue (2 lits ...
Séjournez dans un gîte cosy au pied des cascades de Chartreuse et face à la majestueuse chaîne de Belledonne. À deux pas de la station de Prapoutel-les-7-Laux et bien sûr, vos compagnons à quatre pattes sont les bienvenus.
Grand gîte sur 2 niveaux 5 chambres 3 salle de bain dans un hameau de moyenne montagne, à 15' de la station été/hiver des 7 Laux, 30' de Grenoble, 1h 30' de Genève
Très bel appartement situé à Prapoutel dans la résidence de chalets du hameau des Granges.
Ce gîte vous permet de conjuguer calme, confort et détente à 100m du départ des parapentes, des randonnées, du funiculaire et de la via-ferrata.
Découvrez cet appartement 2 pièces de 35 m², idéal pour 4 personnes. Profitez de la vue montagne, de l'équipement avec lave-linge et lave-vaisselle, et de l'accès facile aux thermes d'Uriage (900 mètres). Animaux bienvenus ! Parking privé ...
Gîte de groupe aménagé dans un petit hameau de moyenne montagne, à La Boutière.
terrasse, balcon, jardin, 8 chambres 5 salles de bain, 2 salon cuisine, une grande pièce de vie de 43 m2.
























































































































































































































































































































































































































































































































































